一、简介
倍速链流水线:英文名 double plus conveyor chain ,用于装配加工生产过程中的物料承载和输送,其结构为倍速链条的增速原理,使工装板快速运行,通过阻挡器控制物料的停止,工人对该工位进行生产加工,与倍速链配套的顶升平移机能完成物料的垂直运行。链条以低度运行,而工装板可获得倍速于链条的移动速度,保证较高的输送效率,使链条工作平稳、噪音小、磨损小、寿命长。
二、组成部分
1、倍速链由主动端和从动端组成
主动端由轴承座、倍速链轮、电机、机架、倍速铝型材组成。
从动端由从动链轮、张紧座、机架、倍速铝型材组成。
2、倍速链条的种类
倍速链条分为三倍速、2.5倍速和单倍速三种;滚轮材质为工程塑料、尼龙、碳钢、不锈钢;链板:不锈钢、碳钢。
特殊用途:全碳钢、全不锈钢、防静电材质;常用:轻载,工程塑料轮;重载,碳钢轮。
3、传动方式
传动方式:空心轴电机驱动方式、卧式电机驱动方式
4、铝型材
选用和倍速链条配套的倍速链铝型材。
5、工装板
工装板是自动化生产线不可或缺的工装,工程上也泛称为治具,工装板是根据被输送物的尺寸形状专门定制设计的。
工装板材质:PVC、碳钢、不锈钢、电木、尼龙等等,可以根据设计需求选材,但一定要保证工装板的承载强度,一般选用PVC材质。
工装板结构:分为导轮(可不装)、工装板主体、夹具组成,其中夹具需要根据产品的不同要求进行设计。
如果工装板上承载的是电气类的产品,需要插电,工装板上还需要安装导电轮、集电器、碳刷等,满足工装板导电的需求,工装板配合滑触线的供电使工装板上的插座带电,用来检测产品。
工装板宽度比铝型材之间的间隙为5mm左右,以保证工装板运行平滑。
6、阻挡器
阻挡器是起到控制工装板放行的作用,其形式分为立式阻挡器和卧式阻挡器,根据生产物料的重量进行选型,分为不同载荷。
7、顶升平移
顶升平移可将垂直于本线体的工装板流入本线体,也可将本线体的工装板流出,结构有链条式、皮带式等,由电机驱动气缸将设备顶起。气缸选型的时候考虑气缸的输出力大小,根据工装板+物料的自重来选型。
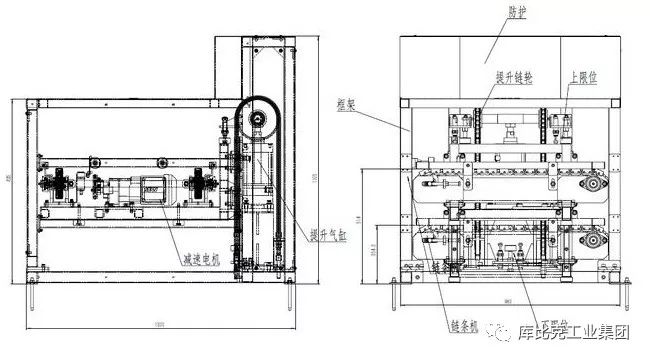
8、回板机
倍速链有双层倍速链和单层倍速链。单层倍速链一般为环形,首尾相连;双层倍速链上层用来生产,下层跑空板,而回板机实现了上下层之间的轮转。一般回板机由动力部分和顶升部分组成,动力部分有:驱动链条或皮带、电机、机架;顶升部分有:顶升气缸、直线导轨滑块、机架、配重(根据负载大小决定)顶升链轮、链条、护罩等等。
三、倍速链选型的计算
2024-04-27 09:56
2024-03-27 09:55
2024-03-14 09:58
2024-03-12 10:11
2024-03-02 09:55
2024-02-29 09:55
2023-12-22 08:49
2023-12-21 09:09
2023-10-18 11:52
2023-10-18 11:51

