您的位置:首页 > 产品 > 工业机器人(IR) > 产品详情

多锲带弯道机

多锲带弯道机

  • 品牌:
  • 最小起订:1 
  • 供货总量:
  • 发货期限:
  • 有效期至:长期有效
  • 更新时间:2020-05-25 17:37
  • 立即询价

    加入收藏

普通商家

热门推荐

产品详情

产品参数

产品图片

一、主要机械结构和特征:

滚筒:φ50*1.5mm多锲带滚筒,两端轴承为免维护深沟球轴承,筒体材料为碳钢镀锌,外包硬质塑料锥套。

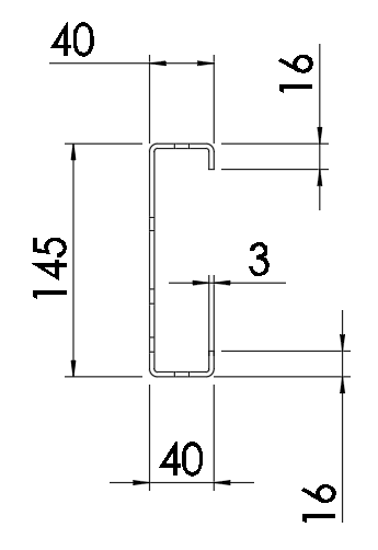
机架:采用3mm钢板下料激光切割/焊接成型,尺寸:145*40mm,结构如下图所示:

支腿:采用定制型材焊接式,具有牢固,稳定性好等优点。用连接板与机架螺栓连接,调节脚底座与地面连接,输送面高度调节±50mm,结构如下图所示:

驱动装置:电机驱动。

表面涂装:机架、支腿、导向件、附件等零部件先经钢丝刷、砂纸等除锈,并经酸洗去油脂,经磷化后表面静电喷涂环氧树脂粉末并烘烤。喷涂色由甲方指定色卡。

外购件配置: 电机采用SEW,链条采用杭州东华。

二、主要性能及其参数:


形式描述:

u 多楔带辊筒传动/φ50×1.5mm

u 滚筒筒体 Q235/201/304

u 锥辊形式 塑胶锥套/钢制成型

u 机架型钢 125×40×3mm

u R系列内置电机

标准样式
标准描述
转弯角度θ (°)90/60/45/30
转弯半径R (mm)850
高度H  (mm)H(min)≥300
内宽B (mm)350 ≤ B ≤ 800
电机功率 (Kw)0.06~0.2

0.032 (电滚筒)

输送速度V (m/min)V=20

V=25

V=32

V=55

整机承载  (Kg)Max ≤80
辊筒夹角θ (°)Max  5
辊筒间距P (mm)P<1/3L(L为输送物长度)