您的位置:首页 > 产品 > 工业机器人(IR) > 产品详情

双链辊道机

双链辊道机

  • 品牌:
  • 最小起订:1 
  • 供货总量:
  • 发货期限:
  • 有效期至:长期有效
  • 更新时间:2020-05-25 17:37
  • 立即询价

    加入收藏

普通商家

热门推荐

产品详情

产品参数

产品图片

一、主要机械结构和特征:

滚筒:φ50*1.5mm双链滚筒,两端轴承为免维护深沟球轴承,筒体材料为碳钢镀锌。

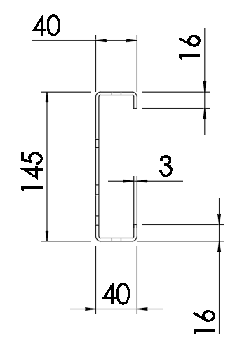
机架:采用3mm钢板激光切割下料/钻孔,数控冷轧成型,尺寸:145*40*16mm;截面尺寸如下图所示:

支腿:采用定制型材焊接式,具有牢固,稳定性好等优点。用连接板与机架螺栓连接,调节脚底座与地面连接,输送面高度调节±50mm,结构如下图所示:

驱动装置:电机驱动。

表面涂装:机架、支腿、导向件、附件等零部件先经钢丝刷、砂纸等除锈,并经酸洗去油脂,经磷化后表面静电喷涂环氧树脂粉末并烘烤。喷涂色由甲方指定色卡。

外购件配置: 电机采用SEW,链条采用杭州东华。

二、主要性能及其参数:


形式描述:

u 无动力辊筒/φ50×1.5mm

u 滚筒筒体 Q235/201/304

u 滚筒间距 75/100/120/160mm

u 机架铝合金120×40mm

标准样式
标准描述
高度H  (mm)H(min)≥150
内宽B (mm)200 ≤ B ≤ 800
输送能力 (Kg/m)Max ≤150
辊筒安装方式六角轴式
辊筒间距T (mm)T≤1/3L(L为输送物长度)